Ruben Hernandez Architects
projects
articles
office
contact
es
中文
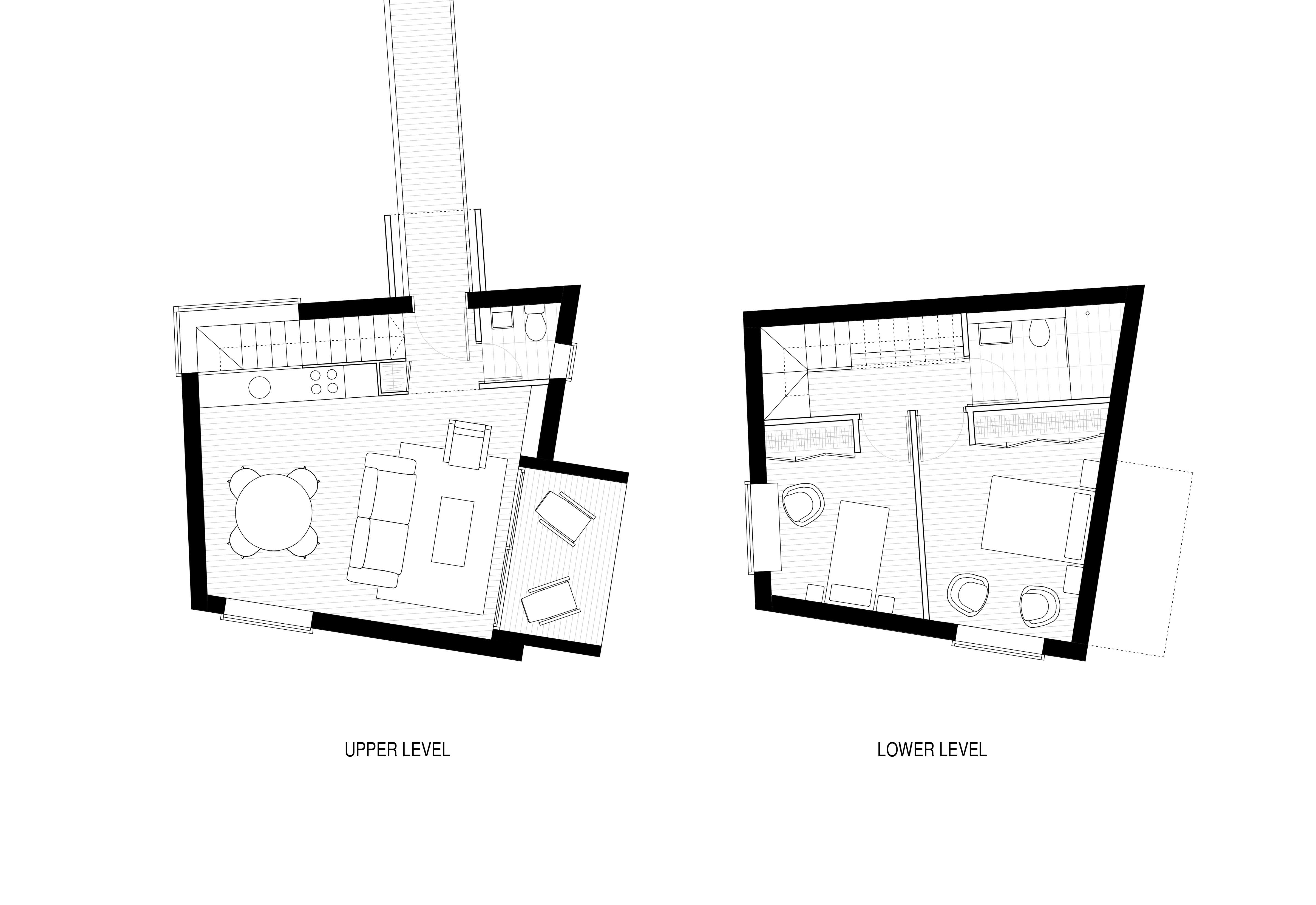
House E
Location:
Spain
Year:
2020
Status:
Feasibility
Program:
Residential (82m²)