Ruben Hernandez Architects
proyectos
artículos
estudio
contacto
en
中文
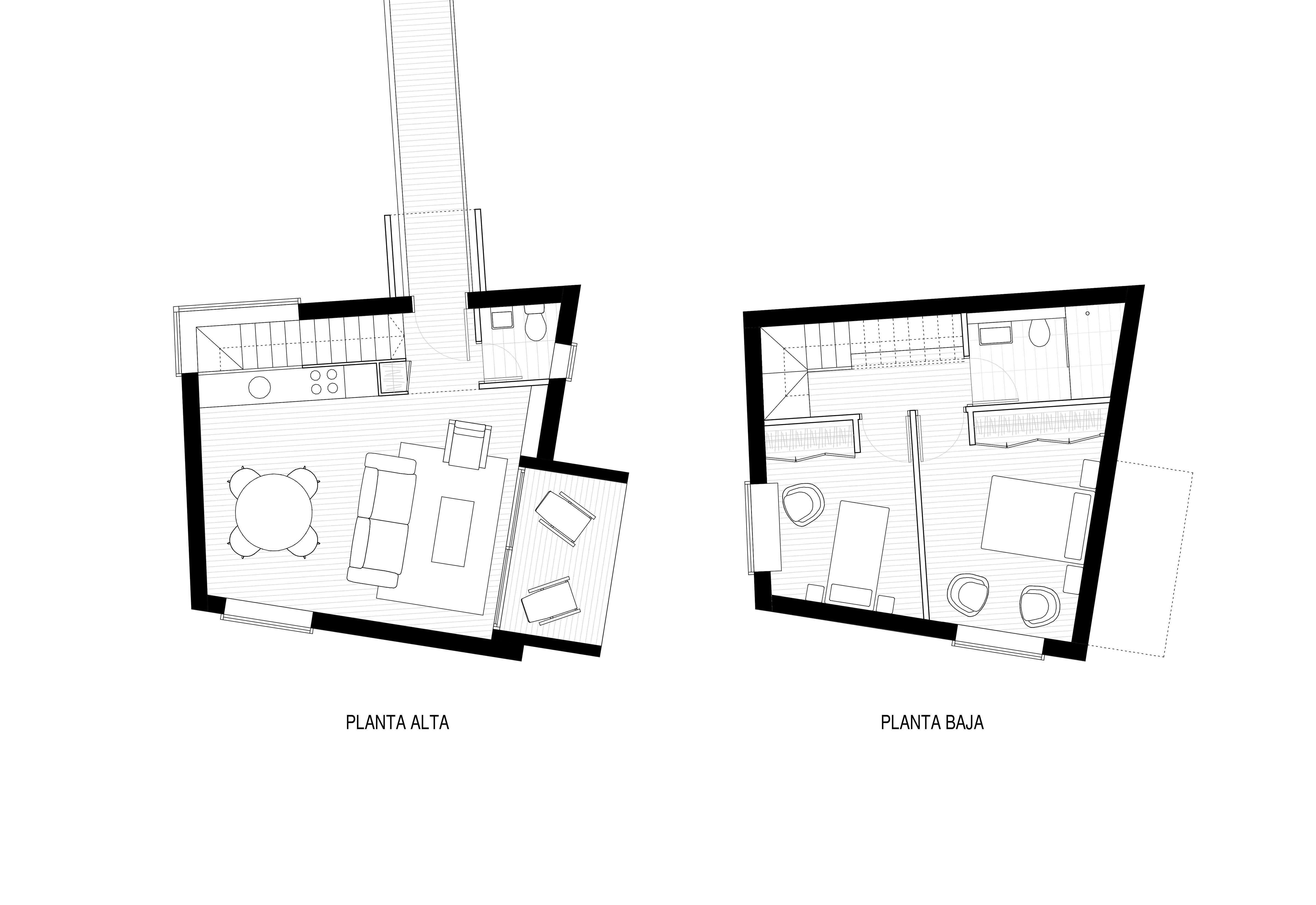
Casa E
Localización:
España
Año:
2020
Estado:
Estudio de viabilidad
Programa:
Residencial (82m²)